Huis - Te koop
Doe een bod vanaf € 249.000
Brusselstraat 51, 9400 Ninove
2
252 m²
1
1
Omschrijving
Woning met tuin en garage in centrum Ninove
Op zoek naar een woning in hartje Ninove met een zee aan mogelijkheden?
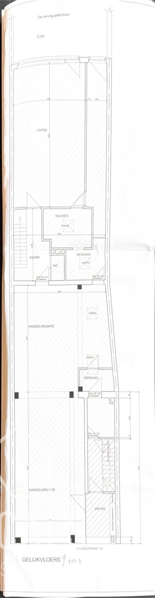
Deze eigendom combineert een immense handelsruimte, twee volwaardige slaapkamers, een gezellige tuin met garage en een uitstekende ligging vlak bij het centrum, winkels, scholen en openbaar vervoer.
De grote handelsruimte vooraan biedt tal van mogelijkheden en kan naar eigen smaak worden ingericht: als winkel, kantoor, praktijkruimte, hobbykamer of zelfs als extra leefruimte. Achter deze ruimte bevindt zich de privé inkomhal die toegang geeft tot de lichtrijke leefruimte met eetplaats en zithoek. Verder zijn er een aparte keuken, een toilet en een ruime berging aanwezig, wat de woning bijzonder praktisch maakt.
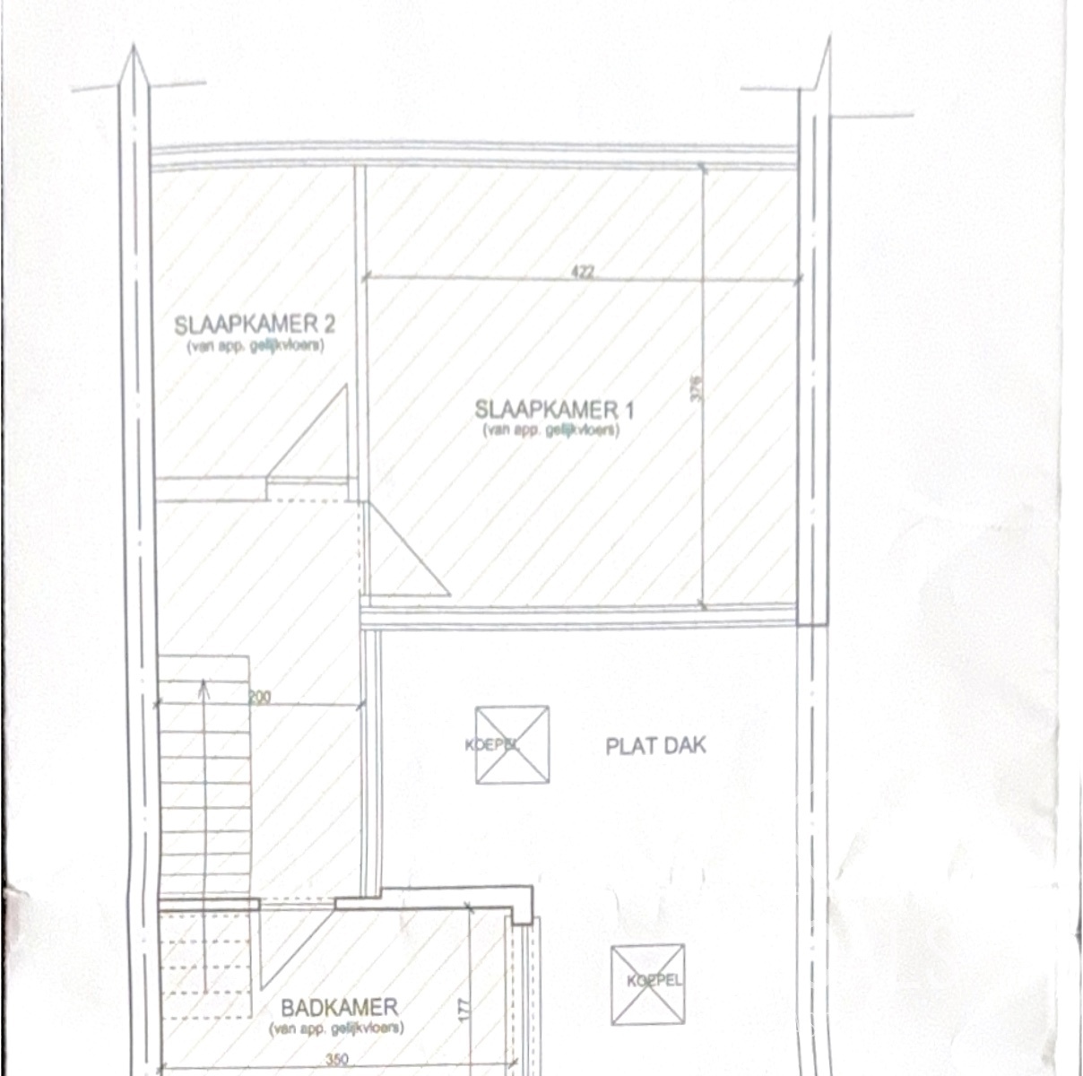
Op de eerste verdieping bevinden zich twee ruime slaapkamers en een badkamer voorzien van ligbad en een tweede toilet. Achteraan de woning is er een gezellig terras dat doorloopt in de onderhoudsvriendelijke tuin, ideaal om een sfeervolle buitenplek te creëren. De garage achteraan maakt het geheel compleet en biedt extra comfort.
Deze woning vormt de perfecte combinatie van wonen en werken, met een indeling die u volledig naar uw eigen wensen kunt aanpassen.
Voor meer informatie of een bezoek: 054 23 53 83 of info@localsvastgoed.be
Deze eigendom combineert een immense handelsruimte, twee volwaardige slaapkamers, een gezellige tuin met garage en een uitstekende ligging vlak bij het centrum, winkels, scholen en openbaar vervoer.
De grote handelsruimte vooraan biedt tal van mogelijkheden en kan naar eigen smaak worden ingericht: als winkel, kantoor, praktijkruimte, hobbykamer of zelfs als extra leefruimte. Achter deze ruimte bevindt zich de privé inkomhal die toegang geeft tot de lichtrijke leefruimte met eetplaats en zithoek. Verder zijn er een aparte keuken, een toilet en een ruime berging aanwezig, wat de woning bijzonder praktisch maakt.
Op de eerste verdieping bevinden zich twee ruime slaapkamers en een badkamer voorzien van ligbad en een tweede toilet. Achteraan de woning is er een gezellig terras dat doorloopt in de onderhoudsvriendelijke tuin, ideaal om een sfeervolle buitenplek te creëren. De garage achteraan maakt het geheel compleet en biedt extra comfort.
Deze woning vormt de perfecte combinatie van wonen en werken, met een indeling die u volledig naar uw eigen wensen kunt aanpassen.
Voor meer informatie of een bezoek: 054 23 53 83 of info@localsvastgoed.be
Delen op
Financieel
- Prijs: Doe een bod vanaf € 249.000,00
- Onder BTW stelsel: Nee
- Beschikbaarheid: Vanaf akte
- Servitude: Ja
Terrein
- Grondoppervlakte: 420,00 m²
- Tuin: Ja
- Oriëntatie terras 1: Zuidwesten
Stedenbouw
- Bestemming: Woongebied
- Bouwvergunning: Ja
- Verkavelingsvergunning: Nee
- Voorkooprecht: Nee
- Asbestinventarisattest: Ja
- Asbestinventarisattest opmaak datum: 10/08/2023
- Dagvaarding: Nee - geen rechterlijke herstelmaatregel of bestuurlijke maatregel opgelegd
- G-score: D
- P-score: D
- Watergevoelig openruimtegebied: Nee
- Vonnissen: Nee
Ligging
- Buurt: Stadskern
- School nabij: Ja
- Winkels nabij: Ja
- Openbaar vervoer nabij: Ja
- Sportcentrum nabij: Ja
Comfort
- Gemeubeld: Nee
- Handicapvriendelijk: Nee
- Lift: Nee
- Zwembad: Nee
Technieken
- Elektriciteit: Ja
- Telefoonbekabeling: Ja
Energie
-
356
- EPC score: 356 kWh/m²/jaar
- EPC code: 20230713-0002943402-RES-1
- EPC klasse: D
- Dubbele beglazing: Ja
- Ramen: Aluminium
- Elektriciteitskeuring: Ja, niet conform
- Type verwarming: Gas cv
- Verwarming: Individueel
- EPC code: 20230713-0002943402-RES-1
Gebouw
- Bewoonbare oppervlakte: 252,00 m²
- Aantal gevels: 2
- Oriëntatie voorgevel: Noordoosten
Indeling
- Keuken: Ja, geïnstalleerd
- Badkamer type: Ligbad
Parking
- Garage: 1
- Parkings binnen: 1